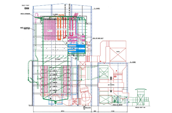
項目名稱: Shuqaiq
項目地點: 沙特阿拉伯
數量: 4 臺
燃料: 重油
額定工況: 25.0MPa/542℃/2260t/h
交付日期: 2015.10
電站鍋爐
通過成功地向沙特電力公司交付8臺700 MW 重燃料油超臨界壓力鍋爐,用于Jeddah 南部和 Shuqaiq 發電廠,現代冰輪證明了其在制造最復雜的蒸汽發生器方面的能力。
-
優勢
YHHI已成功向沙特電力公司交付了8臺超臨界燃油鍋爐。
YHHI致力于發展生產制造能力,提高創新能力。為世界各大電廠提供最優質的產品和服務。
適用各燃料(如:燃氣/燃油/煤)的實用型鍋爐



